
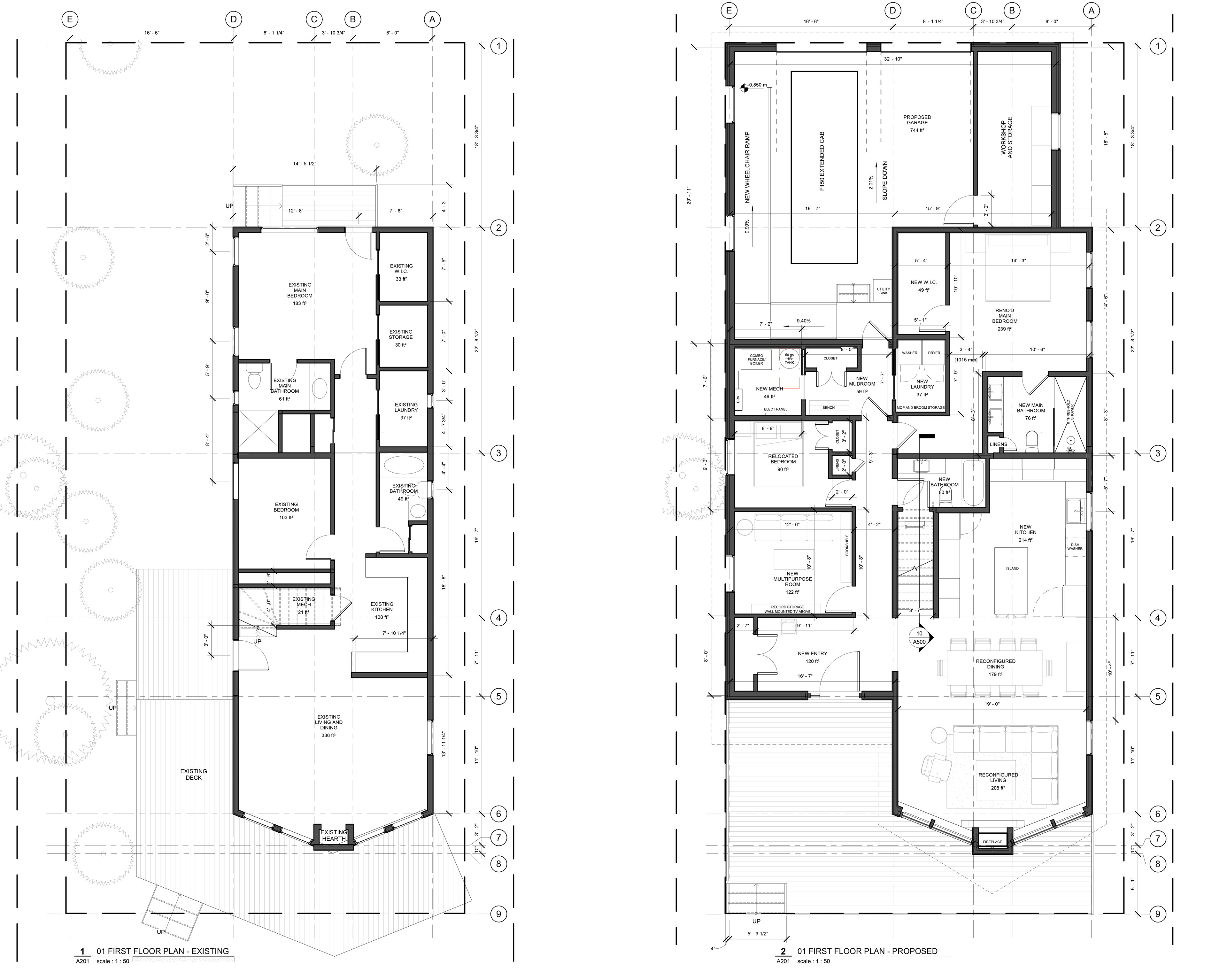
This project involves the renovation and expansion of an existing Linwood home in downtown Canmore. The scope includes a comprehensive interior remodel, installation of high-performance windows, new exterior insulation and cladding, a west-side addition, and a new attached double garage at the rear of the property.
Designed with aging in place in mind, the home features accessible elements such as a wheelchair ramp in the garage, wide clearances in the kitchen, oversized doors, and a zero-threshold shower to ensure long-term comfort and mobility.
