
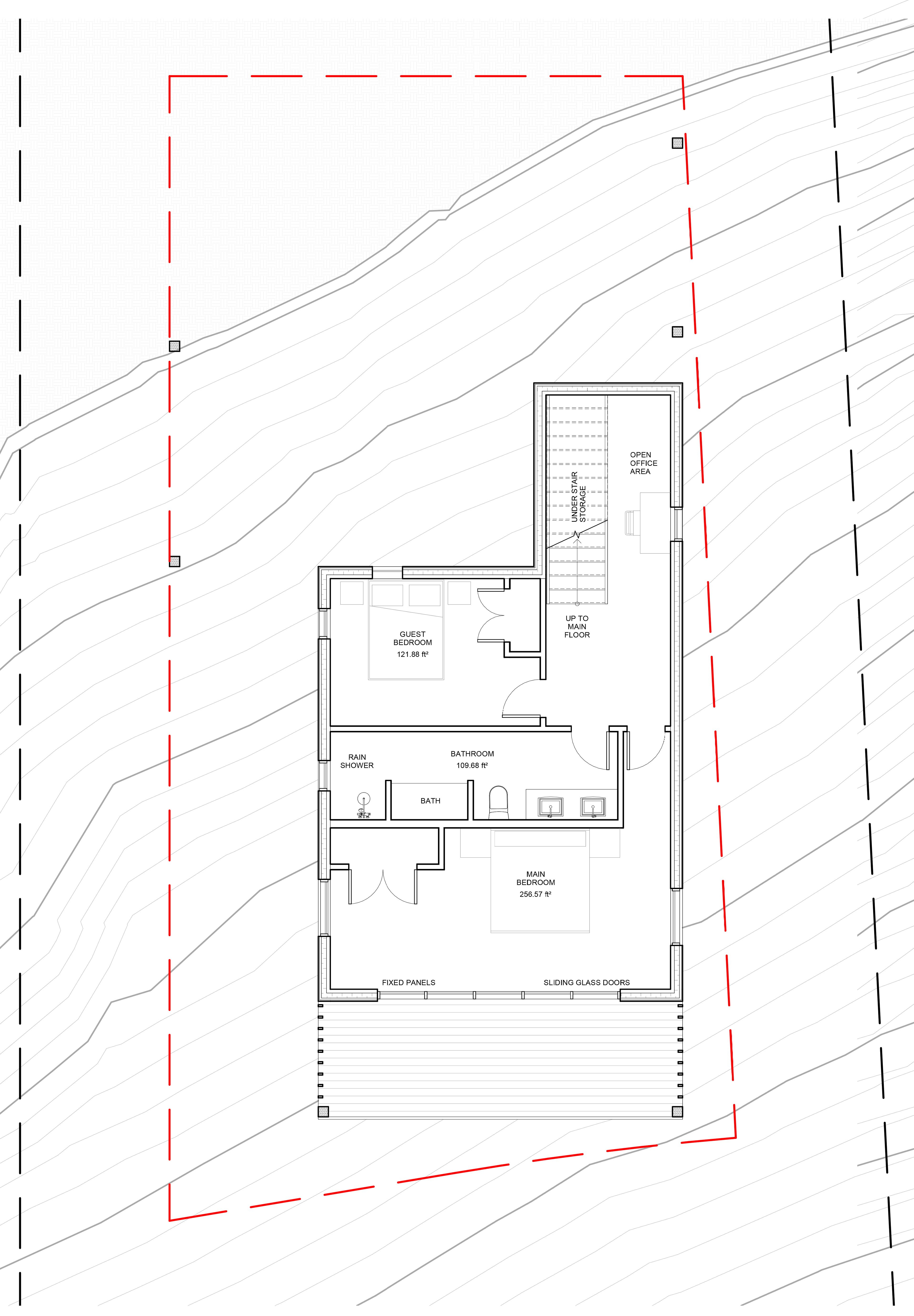
Perched on a steeply sloping site overlooking the St. Mary River in Kimberley, BC, this modern timber frame home was designed for minimal site disturbance. At the owner-builder’s request, the house is elevated on a series of wooden posts, allowing it to float above the terrain and avoid the need for extensive excavation, shoring, or foundation work. Modest in scale, the home features a two-vehicle carport, dedicated outdoor bike storage, main-floor living spaces, two bedrooms on the lower level, and a loft office with sweeping views.


